This post was composed by killer students Hannah Paoletti and Melony McGreevy. Everyone loves firemen.
Introduction
Ostia Antica is an ancient port city that was originally used for military purposes and is preserved due to earth sediment coverage. What we have left of this city are foundations and structures of remaining buildings. What we don't see is the wood that was used to build Ostia which was a major fire hazard to the city. Because massive fires spread through the city firefighters were in high demand and they were called the vigiles.
![]() |
|
Hannah and Melony standing in
the courtyard of the barracks in Ostia Antica. Pictured in behind them is a
large archway that allowed the wagons to be carried out of the barracks.
|
Barracks of the Firemen
The firehouse was built on the side of the city to be close to Tiber River and close to the grain supply (Schellinger, 502). The grain supplies were one of the most important things grown for the people of Ostia because it was their main source of food as well as Romes, so it was mandatory to have firefighters close by to tend to a fire if necessary. The firefighters or vigiles were chosen due to their keen sense of smell, as to be able to smell smoke nearby. We are unsure if there were any other methods of alarming the vigiles of a fire but some speculate that horns were used to alert the town.
![]() |
| Layout of the Building. |
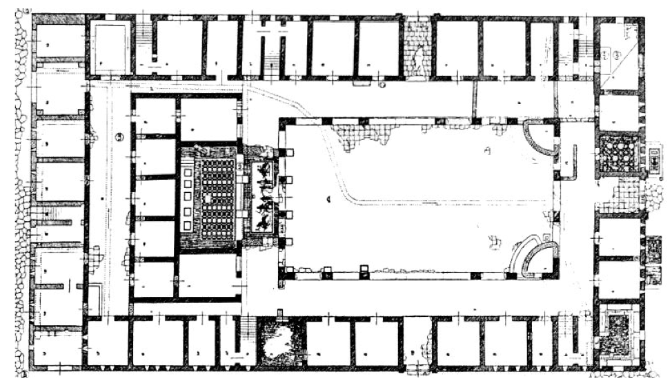
Layout of the Building
The barracks existed during Domitian’s reign but most of the surviving structure is Hadrianic. Fireman lived on the first floor of the building to be close to a quick escape if needed and in the portico (http://www.ostia-antica.org/regio2/5/5-1.htm). In the center of the building was a large courtyard that we presume was used for exercise and outside daily activities. Columns may have surrounded the courtyard due to evidence found. The reason for the open space was to allow natural light into the barracks. Located around the courtyard were marbled inscriptions speculated to be bases of statues. Two fountains stood in the courtyard. To one side of the building was an Augusteum that served the purpose of having a space dedicated to the emperor. At the front of the building there were large archway doors for wagons and pump systems to fit through. To the corner of the building there was a latrine with a statue of the goddess Fortuna. We speculate the statue was there to help the people “go freely” and have healthy digestive systems. Also on the side of the building were two large water tanks used to store water for the pump systems “http://www.ostia-antica.org/dict/topics/caserma/caserma.htm”. Large archways allowed for the wagons full of water to get out fast and get to the fires.
![]() |
| A picture of a water tank (well) that was used to collect water in case of a fire. |
![]() |
| Base of a statue in the courtyard of the barracks. |
IMPORTANCE
The
vigiles jobs were seen as some of the most important people in the Ostia
community. During these times fire was a large problem due to buildings being
made up of mostly wood. The vigiles jobs were to react quickly and gather their
equipment and head out to the site of the fire and salvage what they could and
contain the fire from spreading throughout the town. On top of their main roles
of being firefighters the vigiles were also like modern day police. They would
patrol around the city and harbor area making sure to keep order in Ostia.




No comments:
Post a Comment